Hiện nay, nhu cầu sở hữu một không gian sống tiện nghi, thẩm mỹ và mang dấu ấn cá nhân ngày càng được chú trọng. Thiết kế kiến trúc nhà phố vì thế đòi hỏi sự sáng tạo, am hiểu và tinh tế trong từng chi tiết. Với kinh nghiệm và phong cách làm việc chuyên nghiệp, Studio 102 mang đến giải pháp thiết kế toàn diện, giúp gia chủ kiến tạo tổ ấm hiện đại, hài hòa và bền vững theo thời gian.

Nhu cầu thiết kế kiến trúc nhà phố trong đô thị hiện đại

Sự phát triển mạnh mẽ của đô thị hóa kéo theo mật độ dân cư ngày càng dày đặc, đặc biệt tại các thành phố lớn. Nhà phố trở thành loại hình nhà ở phổ biến nhờ khả năng tận dụng diện tích đất hẹp và phù hợp với lối sống đô thị năng động. Tuy nhiên, chính sự giới hạn về không gian, chiều ngang hẹp, chiều sâu lớn đã đặt ra yêu cầu cao hơn trong thiết kế kiến trúc.

Nhu cầu thiết kế kiến trúc nhà phố ngày càng gia tăng, đặc biệt ở các đô thị lớn
Nhu cầu thiết kế kiến trúc nhà phố ngày càng gia tăng, đặc biệt ở các đô thị lớn

Người sở hữu nhà phố hiện nay không chỉ mong muốn một nơi ở tiện nghi, mà còn kỳ vọng vào một không gian sống mang dấu ấn riêng, đáp ứng tiêu chuẩn thẩm mỹ, phong thủy và hiệu quả sử dụng. Thiết kế kiến trúc nhà phố vì thế không còn là việc sắp xếp các phòng chức năng đơn thuần, mà là quá trình sáng tạo tổng thể. Từ quy hoạch mặt bằng, tổ chức không gian, giải pháp thông gió, chiếu sáng tự nhiên cho đến cách lựa chọn vật liệu và phong cách kiến trúc phù hợp đều cần được chú trọng.

Xu hướng thiết kế nhà phố hiện đại

Các xu hướng thiết kế ngày nay hướng đến sự tối ưu không gian, hài hòa với thiên nhiên và tạo cảm giác thư thái trong chính ngôi nhà của mình. Là đơn vị tiên phong trong lĩnh vực này, thiết kế kiến trúc nhà phố Studio 102 luôn cập nhật xu hướng mới để mang đến những giải pháp tinh tế và bền vững.

Kiến trúc xanh – Không gian sống gần gũi thiên nhiên

Xu hướng thiết kế hướng đến không gian xanh
Xu hướng thiết kế hướng đến không gian xanh

Kiến trúc xanh chú trọng đưa cây xanh, ánh sáng và gió tự nhiên vào công trình. Giếng trời, sân trong hay ban công phủ xanh giúp cải thiện vi khí hậu, tiết kiệm năng lượng và tạo sự kết nối giữa con người với thiên nhiên.

Phong cách tối giản – Tinh gọn và sang trọng

Thiết kế nhà phố tối giản
Thiết kế nhà phố tối giản

Tối giản đang trở thành lựa chọn hàng đầu của gia chủ yêu thích sự thanh lịch. Đường nét gọn gàng, vật liệu tự nhiên và bảng màu trung tính giúp không gian rộng thoáng, tinh tế nhưng vẫn đầy tính nghệ thuật.

Tận dụng ánh sáng và thông gió tự nhiên

Nhà phố hiện đại ưu tiên giải pháp lấy sáng và thông gió để không gian luôn thoáng mát. Giếng trời, cửa sổ lớn và vật liệu kính trong suốt mang lại sự sáng sủa, đồng thời tiết kiệm chi phí năng lượng.

Kết nối không gian trong – ngoài

Thiết kế không gian mở
Thiết kế không gian mở

Thiết kế mở giúp liên kết các khu vực chức năng, tạo cảm giác rộng rãi và linh hoạt. Sự hòa quyện giữa nội thất và cảnh quan bên ngoài mang đến trải nghiệm sống gần gũi và tràn đầy sinh khí.

Ứng dụng vật liệu và công nghệ hiện đại

Xu hướng sử dụng vật liệu mới như kính, lam nhôm, sơn hiệu ứng kết hợp công nghệ nhà thông minh giúp nâng cao tiện ích và giá trị thẩm mỹ. Công trình vì thế vừa bền vững vừa hiện đại theo thời gian.

Cá nhân hóa không gian sống

Mỗi ngôi nhà là một câu chuyện riêng, phản ánh phong cách và lối sống của chủ nhân. Việc cá nhân hóa giúp công trình không chỉ đẹp mà còn mang dấu ấn đặc biệt, thể hiện rõ triết lý sống của gia chủ.

Xem thêm: Studio 102 thiết kế nội thất: Giải pháp sáng tạo cho không gian sống độc bản

Studio 102 – Đơn vị uy tín trong lĩnh vực thiết kế kiến trúc nhà phố

Việc lựa chọn một đơn vị thiết kế uy tín đóng vai trò quyết định đến chất lượng và giá trị lâu dài của công trình. Với triết lý “kiến tạo không gian sống tinh tế và bền vững”, thiết kế kiến trúc nhà phố Studio 102 đã khẳng định vị thế của mình qua hàng loạt dự án thành công, mang đậm dấu ấn sáng tạo và tính ứng dụng cao.

Tòa nhà kết hợp kinh doanh thực hiện bởi Studio 102
Tòa nhà kết hợp kinh doanh thực hiện bởi Studio 102

Hành trình phát triển

Từ những ngày đầu thành lập, Studio 102 đã định hướng trở thành đơn vị chuyên sâu trong lĩnh vực thiết kế kiến trúc và nội thất. Trải qua nhiều năm kinh nghiệm, Studio 102 không ngừng hoàn thiện quy trình làm việc, đầu tư công nghệ hiện đại và mở rộng mạng lưới đối tác để mang lại dịch vụ toàn diện cho khách hàng. 

Mỗi dự án đều được xem là một hành trình sáng tạo, nơi đội ngũ kiến trúc sư nghiên cứu tỉ mỉ từng chi tiết nhằm tạo ra công trình phù hợp nhất với điều kiện thực tế và nhu cầu sử dụng.

Tầm nhìn, sứ mệnh và giá trị cốt lõi

Studio 102 hướng đến tầm nhìn trở thành thương hiệu hàng đầu trong lĩnh vực kiến trúc đô thị hiện đại. Sứ mệnh của doanh nghiệp là kiến tạo những ngôi nhà không chỉ đẹp mà còn mang giá trị nhân văn, đề cao tính bền vững và thân thiện với môi trường. Các giá trị cốt lõi gồm: sáng tạo, tận tâm, chuyên nghiệp và trách nhiệm. Đây là kim chỉ nam giúp thiết kế kiến trúc nhà phố Studio 102 luôn duy trì chất lượng và uy tín trong mọi dự án.

Đội ngũ kiến trúc sư và chuyên gia giàu kinh nghiệm

Thành công của Studio 102 được xây dựng từ nền tảng con người. Đội ngũ kiến trúc sư, kỹ sư và chuyên gia thiết kế tại đây đều có trình độ chuyên môn cao, từng đảm nhiệm nhiều dự án lớn trong và ngoài nước. Họ không chỉ am hiểu về kỹ thuật xây dựng, vật liệu và xu hướng thẩm mỹ, mà còn có khả năng thấu hiểu nhu cầu của khách hàng để chuyển hóa thành giải pháp thiết kế thực tế, hiệu quả.

Phong cách thiết kế đặc trưng: tinh tế, hài hòa và sáng tạo

Điểm khác biệt nổi bật của Studio 102 nằm ở khả năng kết hợp hài hòa giữa nghệ thuật và công năng. Mỗi công trình được thiết kế dựa trên nguyên tắc tối ưu diện tích, tôn trọng bối cảnh và khai thác tối đa ánh sáng tự nhiên. 

Phong cách của thiết kế kiến trúc nhà phố Studio 102 thể hiện sự tinh tế trong từng đường nét, sử dụng vật liệu bền vững và màu sắc trung tính để tạo nên không gian hiện đại nhưng vẫn ấm áp, gần gũi. Đặc biệt, Studio 102 luôn hướng tới việc cá nhân hóa thiết kế, giúp mỗi ngôi nhà trở thành một tác phẩm mang đậm dấu ấn riêng của gia chủ.

Cam kết chất lượng và uy tín

Studio 102 cam kết mang đến cho khách hàng trải nghiệm dịch vụ trọn gói, minh bạch và chuyên nghiệp. Mọi công trình đều được triển khai theo quy trình chuẩn, kiểm soát chặt chẽ từ khâu lên ý tưởng đến hoàn thiện hồ sơ kỹ thuật. Đơn vị cũng thường xuyên cập nhật công nghệ thiết kế tiên tiến, ứng dụng mô hình 3D và phần mềm chuyên dụng để giúp khách hàng dễ dàng hình dung toàn bộ công trình trước khi thi công.

Xem thêm: Studio 102 thiết kế kiến trúc: Kiến tạo không gian sống khác biệt

Quy trình thiết kế kiến trúc nhà phố tại Studio 102

Một bản thiết kế kiến trúc hoàn chỉnh là kết quả của quá trình nghiên cứu kỹ lưỡng, phối hợp chặt chẽ giữa kiến trúc sư và chủ đầu tư. Thiết kế kiến trúc nhà phố Studio 102 xây dựng một quy trình làm việc bài bản, minh bạch và chuyên nghiệp, giúp khách hàng dễ dàng theo dõi từng giai đoạn phát triển của dự án.

Bước 1: Khảo sát và phân tích hiện trạng công trình

Đây là nền tảng quan trọng cho toàn bộ dự án. Đội ngũ Studio 102 sẽ tiến hành khảo sát chi tiết hiện trạng khu đất, bao gồm vị trí, hướng nắng, hướng gió, địa chất và quy hoạch xung quanh. Việc thu thập dữ liệu thực tế giúp kiến trúc sư đưa ra các giải pháp bố trí mặt bằng, kết cấu và hình khối phù hợp, đảm bảo công trình vừa đẹp vừa bền vững theo thời gian.

Bước 2: Tiếp nhận yêu cầu và định hướng phong cách thiết kế

Studio 102 đặt yếu tố con người làm trung tâm của thiết kế. Kiến trúc sư sẽ lắng nghe mong muốn, thói quen sinh hoạt và ngân sách đầu tư của gia chủ để xây dựng định hướng phong cách phù hợp. Nhờ sự thấu hiểu sâu sắc, thiết kế kiến trúc nhà phố Studio 102 đảm bảo mỗi ngôi nhà đều mang đậm dấu ấn cá nhân, vừa tiện nghi vừa hài hòa thẩm mỹ.

Bước 3: Lên ý tưởng kiến trúc và bố trí mặt bằng công năng

Sau khi thống nhất yêu cầu, đội ngũ kiến trúc sư bắt đầu phát triển ý tưởng tổng thể cho ngôi nhà. Sơ đồ bố trí mặt bằng được thiết kế dựa trên nguyên tắc tối ưu diện tích, kết nối không gian và tận dụng tối đa ánh sáng, thông gió tự nhiên. Giai đoạn này giúp chủ đầu tư hình dung cách tổ chức công năng rõ ràng trước khi đi vào thiết kế chi tiết.

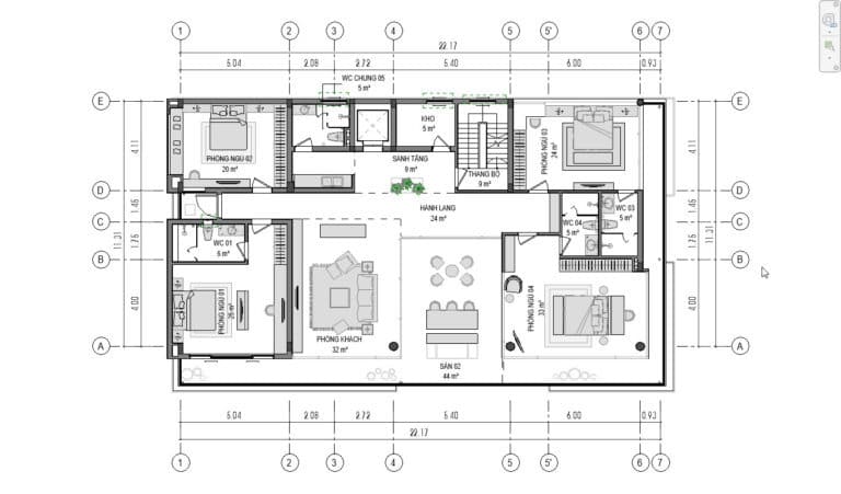
Bước 4: Thiết kế phối cảnh 3D, mặt đứng và mặt cắt chi tiết

Thiết kế phối cảnh 3D, mặt đứng và mặt cắt chi tiết
Thiết kế phối cảnh 3D, mặt đứng và mặt cắt chi tiết

Ở bước này, Studio 102 sẽ trình bày bản phối cảnh 3D trực quan, thể hiện rõ hình khối kiến trúc, vật liệu và màu sắc chủ đạo. Song song đó, các bản vẽ mặt đứng và mặt cắt chi tiết giúp khách hàng nhìn thấy toàn cảnh công trình ở nhiều góc độ khác nhau. Với sự hỗ trợ của công nghệ thiết kế tiên tiến, thiết kế kiến trúc nhà phố Studio 102 mang lại cho khách hàng trải nghiệm chân thực nhất trước khi công trình được thi công.

Bước 5: Hoàn thiện hồ sơ kỹ thuật thi công

Khi phương án thiết kế được duyệt, đội ngũ kỹ thuật sẽ triển khai hồ sơ thi công chi tiết, bao gồm bản vẽ kết cấu, hệ thống điện nước, chiếu sáng, thông gió và vật liệu sử dụng. Tất cả được trình bày khoa học, rõ ràng nhằm đảm bảo quá trình thi công diễn ra thuận lợi, chính xác và tiết kiệm chi phí tối đa cho chủ đầu tư.

Bước 6: Giám sát tác quyền trong quá trình thi công

Studio 102 còn đồng hành cùng khách hàng trong quá trình thi công. Kiến trúc sư sẽ trực tiếp kiểm tra, đối chiếu bản vẽ, xử lý các tình huống phát sinh và đảm bảo công trình được thực hiện đúng với tinh thần thiết kế ban đầu. Đây là bước thể hiện cam kết trách nhiệm và uy tín của thiết kế kiến trúc nhà phố Studio 102 trong từng dự án.

Nếu bạn đang tìm kiếm một đơn vị thiết kế chuyên nghiệp, sáng tạo và đáng tin cậy, Studio 102 chính là lựa chọn lý tưởng. Studio 102 cam kết mang đến giải pháp tối ưu, thẩm mỹ và phù hợp với từng nhu cầu cụ thể của khách hàng. Mỗi công trình đều được chăm chút tỉ mỉ, đảm bảo sự hài hòa giữa công năng, phong cách và giá trị sống. Liên hệ ngay Studio 102 qua hotline 0978 801 711 để được tư vấn và hiện thực hóa ngôi nhà mơ ước của bạn một cách hoàn hảo và trọn vẹn nhất.

Leave a Reply

Your email address will not be published. Required fields are marked *