
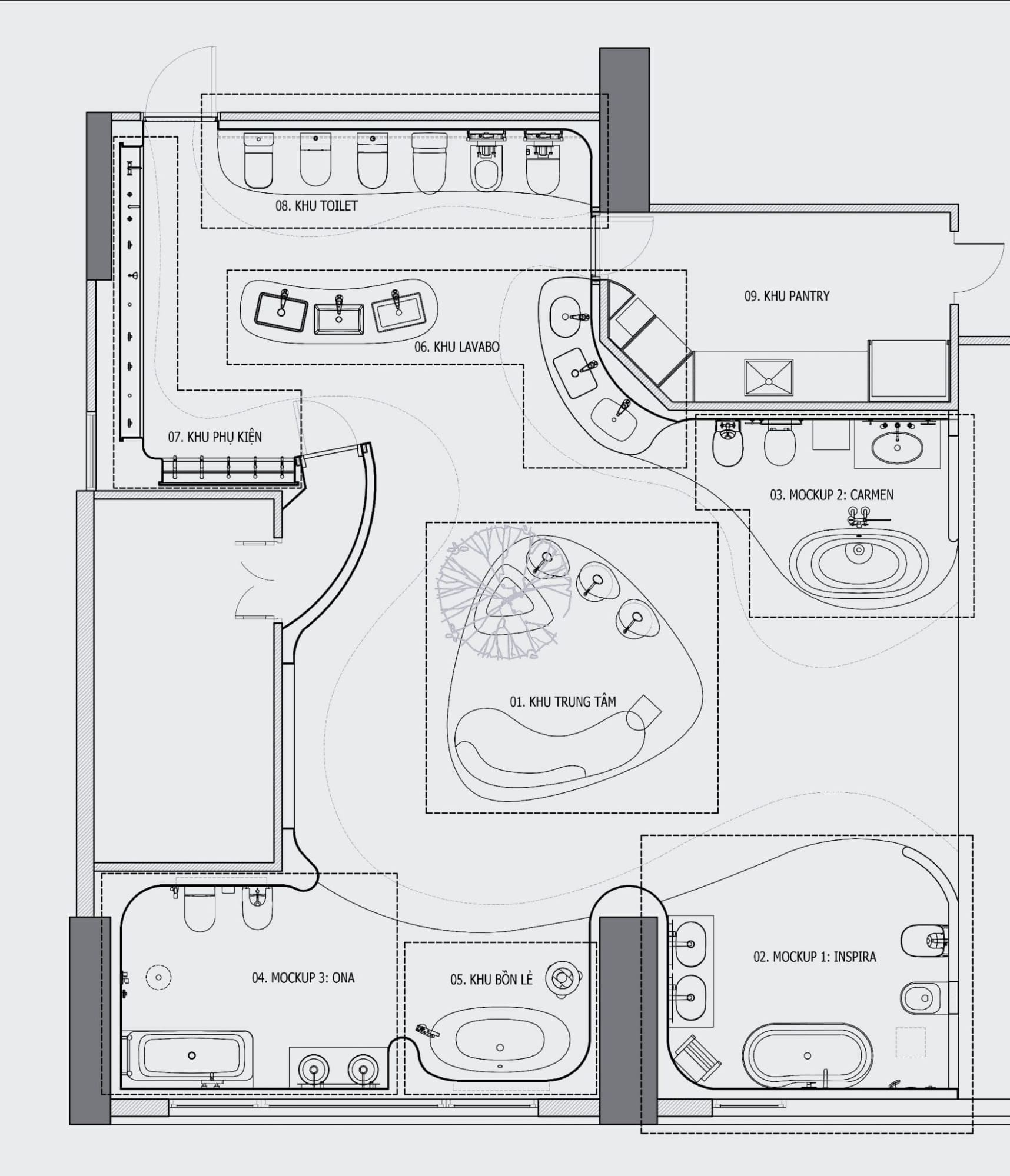
Studio102 thiết kế một showroom cho hãng gốm sứ vệ sinh Tây ban nha nổi tiếng ROCA. Thiết kế thể hiện sự phản ánh về nguồn gốc của thương hiệu đến từ vùng Địa trung hải , tinh thần mềm mại và uyển chuyển của các sản phẩm tinh tế của Roca










Showroom ROCA
Studio102 thiết kế một showroom cho hãng gốm sứ vệ sinh Tây ban nha nổi tiếng ROCA. Thiết kế thể hiện sự phản ánh về nguồn gốc của thương hiệu đến từ vùng Địa trung hải , tinh thần mềm mại và uyển chuyển của các sản phẩm tinh tế của Roca Bài viết…








